大学生创新训练项目申请书
项目编号 S201910536037
项目名称
如果您无法在线浏览此 PDF 文件,则可以
下载免费小巧的 福昕(Foxit) PDF 阅读器,安装后即可在线浏览 或
下载免费的 Adobe Reader PDF 阅读器,安装后即可在线浏览 或
下载此 PDF 文件
项目负责人 欧阳丹 联系电话 15974219335
所在学院 建筑学院
学 号 201614020305 专业班级 建筑学1603班
指导教师 许建和
E-mail 1071610292@qq.com
申请日期 2019年05月01日
起止年月 2019.05.01—2021.05.01
304永利集团官网入口
填 写 说 明
1、本申请书所列各项内容均须实事求是,认真填写,表达明确严谨,简明扼要
2、申请人可以是个人,也可为创新团队,首页只填负责人。“项目编号”一栏不填。
3、本申请书为大16开本(A4),左侧装订成册。可网上下载、自行复印或加页,但格式、内容、大小均须与原件一致。
4、负责人所在学院认真审核, 经初评和答辩,签署意见后,将申请书(一式两份)报送××××大学项目管理办公室。
一、
基本情况
项目
名称
|
精准扶贫背景下的乡村历史建筑保护与活化研究——以新宁县枧杆山村为例
|
所属
学科
|
学科一级门:
|
工学
|
学科二级类:
|
建筑类
|
申请
金额
|
20000元
|
起止年月
|
2019 年 05 月至 2021年05月
|
负责人
姓名
|
欧阳丹
|
性别
|
女
|
民族
|
汉
|
出生年月
|
1998年 02 月
|
学号
|
201614020305
|
联系
电话
|
宅:073185054526 手机:15974219335
|
指导
教师
|
许建和
|
联系
电话
|
宅:073185053926 手机:13467512989
|
负责人曾经参与科研的情况
|
1)2018年暑期参加建筑学院赴新宁县枧杆山村三下乡实践项目
2)多次参加湖南传统民居与山地村落的调研与测绘
3)华东五市调研,山西陕西两省调研——城市与建筑空间环境实习
4)南岳衡山,安徽屏山,宏村美术素描水彩写生实习
5)西山地民居——喜村窑洞测绘与分析
|
指导教师承担科研课题情况
|
1)“地域资源禀赋下的湖南丘陵地带传统村落发展与演变研究”(2016M2345),博士后科学基金面上项目 主持 在研 2016.06-2017.06.
2)“适应山地气候特点的湘南乡土建筑再生设计研究”(51208060),国家自然科学基金,主持 已完成 2013-2015.
3)“湘南乡土建筑气候适应性再生设计策略研究”(2013SK3142),湖南省科技计划项目,主持,已完成 2013-2015.
4)“传统村镇人居环境保护与更新策略研究”(07C095),湖南省教育厅科技计划项目,主持,已完成 2007-2009.
|
指导教师对本项目的支持情况
|
指导教师依托主持的各类建筑历史与理论方向科研课题,积极指导课题组成员开展实地调研,撰写专题调查报告。
|
项
目
组
主
要
成
员
|
姓 名
|
学号
|
专业班级
|
所在学院
|
项目中的分工
|
欧阳丹
|
201614020305
|
建筑学1603班
|
建筑学院
|
普查分析、保护活化策略研究、方案设计、撰写报告论文、
|
杨子银
|
201617020127
|
城乡规划1601班
|
建筑学院
|
普查分析、保护活化策略研究、方案设计、撰写报告论文、绘图建模
|
樊恭甫
|
201614020309
|
建筑学1603班
|
建筑学院
|
普查分析、保护活化策略研究、方案设计、撰写报告论文、绘图建模
|
邹芷晴
|
201614020209
|
建筑学1602班
|
建筑学院
|
保护活化策略研究、方案设计、撰写报告论文、绘图建模
|
|
杨光颖
|
201717170121
|
城乡规划1701班
|
建筑学院
|
普查分析、保护活化策略研究、撰写报告论文、绘图建模
|
二. 立项依据(可加页)
(一) 项目简介
本研究在精准扶贫背景下,对新宁县枧杆山村历史建筑进行普查与分析,制定历史建筑保护与活化策略,并对典型历史建筑大礼堂进行保护活化方案设计,以达到弘扬传统文化,促进旅游业发展,振兴乡村、精准扶贫的目的。
(二) 研究目的
本研究从乡村历史建筑保护与活化着手,结合精准扶贫的时代背景,振兴乡村的发展需求,以304永利集团官网入口对口扶贫村——新宁县水庙镇枧杆山村为例,研究目的主要为以下两个方面:
(1)保护与活化历史建筑弘扬传统文化,利于乡村振兴
习近平总书记指出:“乡村文明是中华民族文明史的主体,村庄是乡村文明的载体,耕读文明是我们的软实力,要保留乡村风貌,坚持传承文化”;“没有高度的文化自信,没有文化的繁荣兴盛,就没有中华民族的伟大复兴”。同样,振兴乡村也要实现文化的振兴,对中华传统文化土壤和种子的守护。而历史建筑作为传统文化的载体,在传统文化的保护与传承中占据着重要地位。乡村历史建筑不仅是经济硬实力的重要组成部分,更是文化软实力的重要组成部分。
基于此,本研究通过对枧杆山村历史建筑的保护与活化研究来保护与传承当地传统文化,推动其乡村文化建设,助力乡村振兴。
(2)保护与活化历史建筑打造旅游资源促进产业发展,利于精准扶贫
近20年来,国家对乡村的发展一直都非常重视,近年来扶贫力度也在加大。2013年,习近平总书记到湖南湘西考察时首次作出了“实事求是、因地制宜、分类指导、精准扶贫 ”的重要指示。习近平总书记在2015减贫与发展高层论坛上强调,中国扶贫攻坚工作实施精准扶贫方略。2019年中央一号文件指出,要全面深化农村改革,激发乡村发展活力。历史建筑的活化就能直观而有效的传承传统文化,同时传统文化促进乡村旅游产业的发展,从某种意义上讲,保护乡村历史建筑,就是保护旅游业的“卖点”,就是保护乡村的传统特色。在当前的精准扶贫社会背景下,也是一种激发乡村发展活力的有效途径。
(三) 研究内容
新宁县水庙镇枧杆山村地处水庙镇西北部,东、南与水庙新村毗邻,西与麻林乡麻林村接壤,北与蒋木村相连,距新宁县城约 16 公里。目前枧杆山村的发展规划为,重启八音岩景区旅游项目,建设旅游及旅游服务产业,二是依托自身农业资源及土地流转项目,做强现代农业及休闲旅游农业。结合枧杆山村现状,本组研究内容为以下三个方面:
(1)新宁县枧杆山村历史建筑普查与分析
枧杆山村历史民居多为木构石基,雕刻精美的窗花门簪,具有湘西南传统特色。不过由于村民保护意识薄弱,政府无相应措施保护,很多都面临腐朽垮塌被拆除的危险,急待保护修复。村庄典型历史建筑代表为村西北角行政七组的历史民居群、村委会旁的大礼堂及三郎庙(图1 图2 图3)。
枧杆山村礼堂是建国初期作为村子里开会传达中央精神以及播放电影等进行活动娱乐而建,砖石结构,外墙还存留着文革时期的宣传标语,后期因承包出去作为加工厂而遭到不同程度的损坏。三郎庙是枧杆山村现存最古老的的历史建筑,已被新宁县文物局立为县级文物保护单位,为一开间木质结构,外有半围墙,建筑面积约占100m2。
目前来说,枧杆山村的历史建筑保护情况都不太理想,民居类多为木构、少量土砖,公建则多为砖石构。枧杆山村历史建筑具有湖南等中部省份的山村的典型性与代表性,也有其独特性,具有重要的研究价值。
图1:枧杆山村尚有人居住的历史民居 图2:枧杆山村历史民居
(图片来源:团队自摄) (图片来源:团队自摄)
|
|
|
|
|
 |
图3:枧杆山村航拍图(来源:团队自摄)
图4:枧杆山村历史建筑分布图
(2)新宁县枧杆山村历史建筑保护与活化策略研究
历史建筑,指有一定历史、科学、艺术价值的,反映城市历史风貌和地方特色的,未公布为文物保护单位的建(构)筑物,是一个地区的文化自明性和连续性的象征。活化利用历史建筑就是在赋予其新的、可持续的建筑功能的基础上,让它重新地焕发新的生命力。活化的前提是保护,而保护的主线是活化(图5)。对枧杆山村而言,要保护历史建筑,有以下四个要点:
第一:政府政策保障与村民保护意识
本组利用建筑学与城乡规划专业知识,将乡村历史建筑的价值及保护活化历史建筑的重要作用进行宣传,提高村民保护意识,协助政府提供一系列的政策保障。
第二:进行历史建筑全面的修复与保护
有价值的历史建筑应从基础、构件、材料、环境等方面进行全面的修复和保护,而不是表面性的维护。
第三:发掘当代价值,制定活化策略
在结合村庄现状、村庄未来发展及需求,发掘历史建筑的当代价值,才能达到活化的目的。
第四:明确功能定位,对典型历史建筑进行专业的设计
功能的明确是历史建筑活化的开始,之后便要对空间进行设计,以使历史建筑真正满足需求,达到活化和使用的目的,以求可循环的保护。
图5:枧杆山村历史建筑保护与活化策略分析图(来源:团队自绘)
(3)新宁县枧杆山村典型历史建筑保护与活化案例设计研究
案例的选择要考虑到易被政府和民众接受,易实施,同时要具有推广宣传性并且本身具有一定的研究价值,活化价值。为此,我们选取了枧杆山村礼堂作为研究案例,进行了以保护和活化为目的的方案设计(图6 图7 图8 图9 图10)。
枧杆山村大礼堂位于湖南省新宁县水庙镇。单层砖木结构,建筑面积约400平方米。其外墙为红砖空斗墙,有壁柱,清水砖墙,但须进行检测和加固处理;窗户基本已被破坏,用砖填实;部分墙体为碎石墙,墙面局部有文革时期留存下来的标语。
礼堂有昔日岁月留下的痕迹和对先辈的记忆,具有其特有的建筑文化价值,还具有承载着过往历史的情感价值。对梘杆山村礼堂的保护,实际是对一种生活形态载体的保护,村委亦提出诉求,希望大礼堂成为村长文化娱乐活动中心。
目前已对枧杆山村大礼堂进行测绘、绘制图纸和制作计算机模型,研究下一步将对大礼堂进行保护与活化方案设计。
图6:大礼堂鸟瞰图(来源:团队拍摄)
图7:礼堂总平面测绘图(来源:团队自绘)
图8:礼堂平面测绘图(来源:团队自绘)
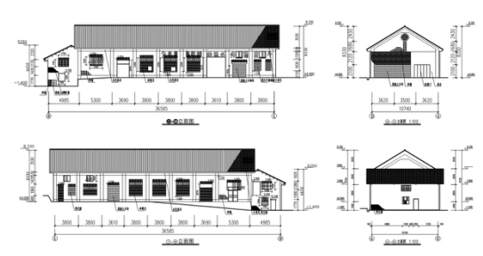
图9:礼堂立面测绘图(来源:团队自绘)
(四) 国、内外研究现状和发展动态
4.1国内研究现状和发展动态
(1)理论研究
我国的历史建筑保护开始于二十世纪二十年代,经过近百年的发展,理论体系和相关立法也正不断完善。而建筑活化再利用的研究一直到21世纪初期才受到正真地关注。
阮仪三等在《历史文化名城保护理论与规划》中将我国现代意义上的历史建筑保护分为三个阶段:“以文物保护为中心内容的单一体系的形成阶段;增添历史文化名城保护为重要内容的双层次保护体系的发展阶段;以及重心转向历史文化保护区的多层次保护体系的成熟阶段。”他认为,文物建筑的保护不仅仅是简单外观形式的修复,更应该注重其使用价值。王新荣在针对历史建筑保护与发展的讨论时也指出“古迹活化”是一种关于文物保护的“微循环”,它让静态的文物得以动起来,在外表“更新”的基础上,把建筑的商业、观赏功能进行更深层面的改造”。
陈志华、李秋香于2012年撰写的《中国乡土建筑初探》是对乡村建筑研究较为全面的论述,表示乡土建筑是中国传统建筑最朴实、最真率、最生活化、最富有人情味的一部分。彭一刚教授的《传统村镇聚落景观分析》、梁雪的《传统村镇实体环境设计》两本书中的部分章节也涉及乡村景观中乡村建筑景观及其环境营造研究。中国美院王澍也因其对乡村建筑的创新和坚持而获得普利茨克奖,对传统原生材料以及建筑色彩的运用,以及传统建筑形式的传承发扬,蕴含深刻的传统文化理念以及传统哲学思想。
(2)实践研究与分析
台湾在借鉴日本“一村一品”的活化模式基础上,以“一村一休闲”与“一村一品”相结合的模式大力发展旅游以及特色产品输出,取得了经济和情感上的双赢。
大陆学者孙君长期关注乡村活化建设,代表性的五山镇活化案例中,以生态文明建设为第一章绪论核心,大力开展新农村建设活动,把农村的环境、经济建设以及乡村文明建设融为--体。在五山镇的实践中,打造了便捷合理的乡村路网、规模体系的茶叶基地,看得见山望的见水的乡村环境;是极具文化特色的园林村镇,不仅发展了乡村经济,而且实现了人与自然的和谐统一。
以京郊房山南窑村为例,针对当前古村落面临的过度旅游开发、乡土性流失、城镇化快速推进、开发性破坏等困境,笔者提出以建筑再利用的方式介入到古村落保护和开发中,以载体的形式联系古村落活力再造与产业变革。从而提出古村落“活化”与建筑改造并行的策略。借助建筑载体和古村落传统文化发展发生联系,对建筑单体或合院进行功能置换,不仅有利于文化传承与发扬,更为古村落经济、社会发展开辟条大道,可谓一举多得。
作为全国重点文物保护单位的东莞南社村,不仅是历史文化名村,还具有丰富的物质资源和非物质资源。对建筑内部空间进行重组及优化和根据发展的需求部分进行功能的置换和整合是笔者的出发点。笔者通过对南社村内的传统风貌建筑的现状以及村落未来发展需求做研究与分析,对其提出了改造的措施,通过把村中的传统风貌建筑分类,针对各类型的传统风貌建筑分别给出相应的改造方案,对于建筑结构及构造的处理也做了做法参考,初步设计出了既能保护好南社村整体风貌又能满足使用及发展需要的案例。
4.2国外研究现状和发展动态
西方对于传统建筑的重视,大约可以从文艺复兴时期开始算起。从文艺复兴时期一-直到19世纪,西方世界的建筑一直是一个不断向历史学习的过程,此阶段出现了多种建筑形式的复兴,如意大利的文艺复兴、法国的古典主义、以及后来的哥特复兴、新古典主义等,都是向历史学习的过程。
19 世纪中叶至 20 世纪 40 年代是美国乡村历史建筑保护的初期,其中最具代表性的有 1853 年弗农女士协会对华盛顿总统故居弗农山庄的保护,以及 1926 年开始的威廉与玛丽学院的教授 W .A .R .Goodwin,及其好友 John D .Rockefeller Jr. 对弗吉尼亚的詹姆斯顿(the Jamestown settlement )的保护,詹姆斯顿是英国人在美国的第一块永久殖民地,也是美国历史上最早一批种植园所在地。而在历史片区整体或城市角度出发的著作——简雅格布斯的《美国大城市的生与死》,则批判了20世纪60年代以前的城市规划理论,主张小尺度的城市建筑设计,强调传统建筑小规模的改造,其由下至上的城市设计观念对城市区域的复兴有一.定的积极影响。
西方的古典建筑保护体系,也在发展过程中逐渐完备了政策及法律体系。1933年8月国际建筑协会(C. I.A.M. )通过的《雅典宪章》中初次提出“历史街区”的概念,认为有历史价值的古建筑均,应妥为保存,不可加以破坏,城市要与其周围影响地区成为一个整体来研究。这是首次对整体保护一个建筑群的认知。1964年5月31日,从事历史文物建筑工作的建筑师和技术员国际会议第二次会议在威尼斯通过的决议《威尼斯宪章》,宪章肯定了历史文物建筑的重要价值和作用,将其视为人类的共同遗产和历史的见证。《威尼斯宪章》可以说是建立了历史文物保护工作的基本理论体系,是对欧洲多年的保护工作的一种总结及对今后历史文物保护工作的--个重要指引。1976年联合国教育、科学及文化组织大会第十九届会议于1976年11月26日在内罗毕通过了《关于历史地区的保护及其当代作用的建议》,提出了若干对于历史地区如何保护的观点和方法。
关于历史建筑的保护的理论,国际上至今也已经有了一定的研究基础。如尤嘎尤基莱托的《建筑保护史》,该书梳理和总结了欧洲建筑保护实践和理念发展的历程,将保护工作追溯到传统社会,认为现代阶段的保护工作其实是对传统的一些观念及文化的一种延续。西萨尔瓦多.穆尼奥斯.比尼亚斯的《当代保护理论》,该书梳理并汇总了目前保护领域中各种的思想。罗伯特.A.杨的《历史建筑保护技术》则是从技术的角度总结了当下历史建筑保护的具体措施。
而纵观亚洲,日本从1955年开始至今已经进行了多次新农村建设运动,20世纪70年代末,日本率先发起“造村运动”,对乡村资源综合利用与发展。使各项目整合并得到高效开发。而1979年实施的“一村一品”运动是乡村建设中极具代表性的探索,充分开发乡村有利资源反哺城市,使乡村换发活力。韩国于1970年朴正熙政府倡导“新村运动”,促进工农业均衡发展。除此以外,进入20世纪90年代,德国的“村庄更新”注重乡村价值.其乡村建设强调可持续发展理念,与自然和谐发展,因地制宜发展可持续经济。
相较于国内,国外的乡村建设起步更早且更为成熟。由于人口与经济结构的差异,国外的乡村被保护的更为完整。以日本为例,其对传统文化的保护意识更为强烈,乡村建筑基本保持传统式样,在改造和更新中能更好的延续传统建筑文化。合掌村从传统的生活方式、邻里关系到传统建造技艺都得到完整的保留。其自然的生态原貌以及浓郁而特有的乡村文化吸引了来自世界各地的游客。这些形形色色的国外成功案例中,传统乡村文化是乡村发展的核心与价值所在。
参考文献
[1]赵璐.京郊传统村落建筑再生利用研究--以房山南窖村为例[D].北京林业大学,2016.
[2]郭新志.美丽乡村建设中乡土建筑的困境与对策——W县S村的个案研究[J].2018.
[3]喻里遥.乡村建筑建设与改造面临的问题及建议[J].湖南工艺美术职业学院,2018:17-124-2.
[4]刘子迪.东莞南社村传统风貌建筑更新活化研究[D].广州大学,2018.
[5]张敏,王思明.美国乡村历史建筑的保护及启示[J]. 南京农业大学,人文社会科学学院, 2014(04):5-8.
[6]黄博文.基于文化复兴的传统乡村建筑更新实践方法研究报告[D].昆明理工大学,2018.
[7]周坚斌.民宿视角下的旧建筑活化再利用研究[D].广东工业大学,2018.
[8]张群,成辉,梁锐,等.乡村建筑更新的理论研究与实践. [J].新建筑,2015(1):28-31.
[9]陈志华,李秋香.中国乡土建筑初探[M].清华大学出版社.2012.
[10]彭一刚.传统村镇聚落景观分析[M].中国建筑工业出版社.1992.
[11]梁雪.传统村镇实体环境设计[M].天津科学技术出版社.2001.
[12]艾伦.阿克塞罗德,美国历史M].沈阳:辽宁教育出版社.2000.
[13] Jane Jacobs. 《THE DEATH AND LIFE OF GREAT AMRICAN CITIES》[M].2012
[14](日)小林正美著,张光玮译。再造历史街区[M].清华大学出版社.2015
[15](英)史蒂文 蒂耶斯德尔等著,张玫英,董卫译.城市历史街区的复兴[M].中国建筑工业出版社.2006
[16] Athens Charter [C]. CIAM. 1933.
[17]INTERNATIONAL CHARTER FOR THE CONSERVATION AND RESTORATION OF MONUMENTS AND SITES [C]. ICOM.1964.
[18]内罗毕建议[C].内罗毕联合国教育.科学及文化组织大会.1976.
[19]华盛顿宪章[C].国际古迹遗址理事会.1987.
[20]罗伯特.A.杨著《历史建筑保护技术》[M].电子工业出版社.2012.04
[21]Jukka Jukilehto《A History Of Architectural Conservation》[M].2011.11
(五) 创新点与项目特色
5.1项目的创新点
(1)对历史建筑进行普查与分析并提出保护活化的针对性策略
在对枧杆山村历史建筑进行普查与分析的基础上,得出枧杆山村的历史建筑保护存在的问题,结合理论成果并提出针对性策略,使其从以往的保护、修复转向循环、适应性再利用等,将建筑从消极、单一、静态转向积极、多元、动态、可持续的保护利用方式。
(2)对典型历史建筑进行保护与活化方案设计
基于建筑学的专业特点,对典型历史建筑——大礼堂进行进行数据分析和空间研究,结合村民需求及村庄发展,达到精准扶贫、振兴乡村的目的,对典型历史建筑大礼堂进行保护与活化方案设计。
5.2项目的特色
(1)精准扶贫:本研究的对象304永利集团官网入口对口扶贫村,致力通过保护与活化当地历史建筑的方式来传承发展传统文化,促进乡村旅游产业的发展,助力实现精准扶贫的目标。
(2)振兴乡村:乡村的振兴不仅是经济的振兴,也是文化的振兴,本研究将通过枧杆山村历史建筑的保护与活化,提高村民自信和凝聚力,达到振兴乡村的目的。
(六) 技术路线、拟解决的问题及预期成果
6.1项目的技术路线
首先,湖南省新宁县枧杆山村历史建筑现状调研。主要采用田野调查法,对当地历史建进行实地调查研究,获取历史建筑的测绘数据和图像图形、保存现状等,整理成调研报告。
其次,对枧杆山村历史建筑进行数据分析。采用空间研究法,通过前者的测绘数据和图像图形,绘制枧杆山村历史建筑平立剖面图,建立计算机模型,并总结历史建筑在营造方面的优缺点,获得历史建筑保护与活化的理论依据和事实基础。
第三,枧杆山村历史建筑保护与活化策略分析研究。运用综合研究法,基于相关理论研究和国家政策引导,结合枧杆山村历史建筑调研报告和计算机图纸模型的事实基础,以传承发展传统文化、利于旅游产业发展、振兴乡村为目的,研究历史建筑保护与活化方式,提出在精准扶贫背景下乡村历史建筑保护与活化的策略。
第四,枧杆山村典型历史建筑案例研究。以枧杆山村典型历史建筑——大礼堂为案例进行实证研究,制作大礼堂保护与活化设计方案文本。
图10:研究技术路线分析
6.2拟解决的问题
本项目以新宁县水庙镇枧杆山村为研究案例,对其区位,人口,土地利用,经济产业等进行深入研究,对传统建筑的现状进行初步走访与记录,在收集大量的第一手资料的基础上分析其(研究过程)存在的问题并探索传统建筑的保护与活化策略,其需要解决的问题如下:
问题一:资料的收集手段
对枧杆山村历史建筑进行普查,采用航拍机、激光测距仪等收集数据与图像图形;对枧杆山村走访,记录了解其人口,土地,经济,文化脉络,利用卫星图和GIS(Geographic Information System 地理信息系统)获取,处理枧杆山村区位,地势,传统建筑的数据,完善和准确收集到的第一手资料信息。
问题二:枧杆山村历史建筑保护与活化的策略分析
在精准扶贫的时代背景下,针对枧杆山村的历史建筑没有得到保护或者保而不活,乡村传统文化没有的到传承和发展,村里公共空间的缺失问题,发掘历史建筑当代价值,明确功能定位,对其保护与活化做策略性分析。
问题三:典型历史建筑案例研究——大礼堂保护与活化方案设计问题
在如今乡村建筑保护活化的诸多案例中,提取契合本次研究课题的要点;以改造设计枧杆山村大礼堂为例,解决村里公共空间的缺失,利于传统文化的传承,建设后衍生出的问题和可持续性的发展。
6.3预期成果
本项目预期的研究成果有:
(1)撰写枧杆山村历史建筑调查报告;
(2)制作枧杆山村大礼堂历史典型建筑保护与活化设计方案文本;
(3)在学术刊物发表1篇以上学术论文。
(七) 项目研究进度安排
2019.05.01--2019.09.30:对枧杆山村历史建筑进行普查,采用田野调查法与文献研究法,获得历史建筑测绘数据与图像图形、保存现状,收集第一手资料。然后采用空间研究法,通过前者的测绘数据和图像图形,绘制枧杆山村历史建筑平立剖面图,建立计算机模型,并总结历史建筑在营造方面的优缺点,获得历史建筑保护与活化的理论依据和事实基础,并撰写《枧杆山村历史建筑调研报告》。
2019.10.01--2020.03.31:研究枧杆山村历史建筑保护与活化的策略,运用综合研究法,基于相关理论研究和国家政策引导,结合《枧杆山村历史建筑调研报告》和计算机图纸模型的事实基础,以传承发展传统文化、利于旅游产业发展、振兴乡村为目的,研究历史建筑保护与活化方式,提出在精准扶贫背景下乡村历史建筑保护与活化的策略。
2020.04.01--2021.05.01:进行枧杆山村典型历史建筑案例研究与撰写论文,在上年度的调查与研究的基础上,对典型历史建筑——大礼堂进行实证研究,进行大礼堂保护与活化设计,并制作《枧杆山村大礼堂保护与活化设计方案文本》。总结乡村传统建筑保护与活化理论,再次完善理论建构研究,最后撰写《精准扶贫背景下的乡村传统建筑保护与活化研究-以新宁县枧杆山村为例》的学术论文与结题报告。
(八) 已有基础
1. 与本项目有关的研究积累和已取得的成绩
(1)有关的研究积累
目组部分成员在古建测绘、历史文化名村保护规划等相关领域开展了一系列的工作,研究经验比较丰富,并取得了一定的工作成果。
1)在指导老师的带领下多次前往湖南省各地开展历史建筑调查研究工作,完成了一系列的古建测绘实践,为湖南省历史建筑的保护与活化研究提供了相关资料,为枧杆山村历史建筑的测绘与保护设计积累了经验。(图11)
图11:湖南道县历史建筑(来源:团队自摄)
2)2018年结合省级历史文化名村资料普查与收集工作对湘南地区进行了深入了调研,通过这个项目,我们获得了对历史建筑的整体系统性了解,也加强了团队对历史建筑文化艺术价值的认识。(图12)
图12:湖南彭梓城村历史建筑(来源:团队自摄)
3)根据新宁县水庙镇枧杆山村“贫困村”的现状及振兴乡村的新时代需求,编写村民调查问卷及村委调查问卷、在志愿者的帮助下入户完成调查问卷填写、之后进行问卷分析。
4)开展村委访谈会,听取村委对乡村在人口、经济产业、村庄未来展望等介绍,与枧杆山村村民深入交流,进一步了解枧杆山村民情、诉求等。
(2)已取得的成绩
1)枧杆山村调研报告
综合村委座谈、村民访谈、问卷调查、实地考察、网上资料查询,将所得信息整理成系统,涉及村庄概况、地理位置、人口与土地、经济与产业、交通与基础设施、公共服务设施、资源禀赋与村庄风貌等内容,撰写枧杆山村调研报告。
2)枧杆山村历史建筑资料汇编
对枧杆山村典型历史历史建筑大礼堂进行测绘,绘制大礼堂总平面、平面、剖面、立面。对枧杆山村其余历史建筑进行测绘,记录层数、结构、造型、位置、功能等信息,整理成枧杆山村建筑信息如表1。
表1:枧杆山村历史建筑与现代“方盒子”建筑汇编表
建筑类型
|
历史建筑(含风貌建筑)
|
现代“方盒子”建筑
|
数量与比例
|
数量(栋)
|
比例
|
数量(栋)
|
比例
|
一组
|
12
|
22.00%
|
43
|
78%
|
二组
|
0
|
0%
|
14
|
100%
|
三组
|
10
|
23%
|
33
|
77%
|
四组
|
15
|
35%
|
28
|
65%
|
五组
|
7
|
28%
|
18
|
72%
|
六组
|
15
|
50%
|
15
|
50%
|
七组
|
4
|
12%
|
29
|
88%
|
八组
|
31
|
58%
|
22
|
42%
|
总结
|
94
|
32%
|
202
|
68%
|
2. 已具备的条件,尚缺少的条件及解决方法
(1)已具备的条件
1)团队成员包含多个专业,具备多学科合作研究的条件和能力,具有学科敏感性。
2)具备历史建筑普查、测绘、分析的素质,及文献搜集、信息数据处理和图像模型绘制的技术。
3)具备乡村历史建筑保护与活化的基本理论储备和建筑方案设计的基本能力。
4)研究点所在村落具有丰富的历史建筑资源。
5)学校、学院及新宁县枧杆山村村委大力支持本研究项目。
(2)尚缺少的条件
1)团队尚不具备部分高端技术的应用能力,如无人机倾斜三维建模、数字近景摄影测量、三维激光扫描测量、热成像相机等。
2)历史建筑保护与活化是一个宏观的课题,它需要研究者多处走访,总结经验教训,团队成员虽也去过省内外部分村落调研学习,但作为学生,不具备四处走访的条件和能力,所调研之数量有限,对其他典型的传统村落传统建筑缺乏必要的调查。
(3)解决方法
1)高端技术方面请求专业老师及高年级同学的指导与帮助,同时通过文献阅读以及向其他社会机构寻求帮助。
2)虽然处于学生时代的我们依然无法解决获取大量国内典型传统村落实地调研的经验问题,但我们会将重心放在省内,放在新宁县,利用假期,对省内历史村落建筑进行重点考察,重点研究。并通过大量阅读文献及时获取国内外传统乡村建筑的保护与活化研究进展。
三、经费预算
开支科目
|
预算经费
(元)
|
主要用途
|
阶段下达经费计划(元)
|
前半阶段
|
后半阶段
|
预算经费总额
|
20000
|
|
15000
|
5000
|
1. 业务费
|
18000
|
|
14000
|
4000
|
(1)计算、分析、测试费
|
0
|
|
0
|
0
|
(2)能源动力费
|
0
|
|
0
|
0
|
(3)会议、差旅费
|
11000
|
实地调研差旅费
|
10000
|
1000
|
(4)文献检索费
|
1000
|
购买相关图书资料等
|
1000
|
0
|
(5)论文出版费
|
6000
|
发表论文版面费
|
3000
|
3000
|
2. 仪器设备购置费
|
0
|
已配备必要的设备
|
0
|
0
|
3. 实验装置试制费
|
0
|
现实验室能完成各项实验
|
0
|
0
|
4. 材料费
|
2000
|
建筑模型材料、图纸等
|
1000
|
1000
|
学校批准经费
|
20000
|
|
|
|
四、指导教师意见
项目选题切合时代与社会需求,申请书撰写条理清晰,研究内容明确具体,技术路线可行,同意指导。
导师(签章):
年 月 日
|
五、院系大学生创新创业训练计划专家组意见
六、学校大学生创新创业训练计划专家组意见
七、大学生创新创业训练计划领导小组审批意见